TEKENING
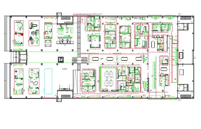
Op de afbeelding zie je een grote detailtekening van de inrichting van een showroom. De tekening is in verschillende lagen opgezet. Verder worden er verschillende kleuren gebruikt voor een duidelijk beeld. De maatvoering in verschillende viewports in de verschillenden schaalverhoudingen.
In deze tekening zijn lagen gemaakt voor plafondindeling, lichtplannen en opstelvlakken.

